Деловое обозрение Первый ульяновский журнал для бизнеса и о бизнесе

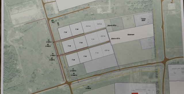
В Ульяновске расширят промпарк «Восточный»

О планах по развитию площадки рассказали в Корпорации развития промышленности и предпринимательства.

Фото: Корпорация развития промышленности и предпринимательства


Корпорация развития промышленности и предпринимательства Ульяновской области

По поручению губернатора провели встречу с профильными ведомствами и ассоциациями, обсудили дальнейшее расширение промпарка «Восточный», принято решение о резервировании некоторых земельных участков.

В первую очередь расширение парка поможет развить производства и выйти из тени «гаражному» мебельному бизнесу.

Бизнес-парк «Восточный» находится на промзоне «Заволжье», общая площадь парка 15 гектар, расположение в нем помогает резидентам сэкономить на проведении коммуникаций и электроэнергии. Всего в промпарке располагается 15 резидентов, планируется увеличение вдвое.

Войти с помощью учетной записи uldelo.ru


Войти с помощью аккаунта в социальных сетях: